Продается дом, 135.7 кв.м., /1 эт
Обзор№ - 57671
| Стоимость | 10 050 000 |
|---|---|
| Комнат в доме | 3 |
| Категория земли | ИЖС |
| Тип строения | Дом |
| Площадь, кв.м. | 135.7 |
| Площадь участка, сот | 7.4 |
| Этажность | 1 |
Адрес
| Населенный пункт | Нововеличковская Станица |
|---|---|
| Улица | улица Рождественская |
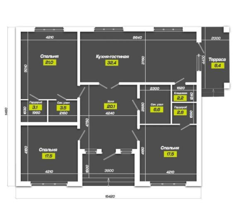
В избранное Большой дом 131 кв. на 7,7 сот
Продается большой уютный дом 131 кв.м на 7,7 сот, ИЖС, в станице Нововеличковская, Динского района. В доме смонтировано отопление, установлены радиаторы, выполнена разводка электрики, выводы под сантехнику, стены отштукатурены. В дом заведены коммуникации: водоснабжение - скважина, электричество 15 кВт, септик. Удобная планировка: большая гостиная 32,5 кв.м, 3 спальни, сан.узел, 2 гардеробные, кладовая. С кухни-гостинной выход на крытую терассу.
На территории комплекса есть вся необходимая для комфортной жизни инфраструктура. Детский сад и школа в пешей доступности.
Подходит ипотека семейная ипотека, сельская ипотека. Можно использовать мат.капитал в качестве ПВ.















