Продается дом, 130 кв.м., /2 эт
Обзор№ - 57864
| Стоимость | 8 600 000 |
|---|---|
| Комнат в доме | 4 |
| Категория земли | ИЖС |
| Тип строения | Дом |
| Площадь, кв.м. | 130 |
| Площадь участка, сот | 4 |
| Этажность | 2 |
| Материал стен | Кирпич |
Адрес
| Населенный пункт | Южный Поселок |
|---|---|
| Улица | улица Майская |
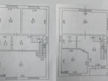
В избранное Дом 130кв.м на 4 сот.
Продается большой дом с мансардным этажом 130кв.м на 4 сотках в пос. Южный. Дом с качественной предчистовой отделкой, сухая механическая стяжка пола, смонтировано отопление, установлены радиаторы и электрокотел, выполнена разводка электрики, выводы под сантехнику, стены отштукатурены и отшпатлеваны. Отличная планировка: Одна спальня, кухня-гостиная, санузел на первом этаже, три спальни, санузел на втором этаже. В дом заведены коммуникации: водоснабжение, электричество 15 кВт, септик.
Отличное расположение, школа в 300м.
Рассмотрим ипотеку любого банка, при необходимости поможем в открытии. Подробнее по телефону







