Продается дом, 132 кв.м., /2 эт
| Стоимость | 9 700 000 |
|---|---|
| Тип комнат | раздельные |
| Комнат в доме | 4 |
| Категория земли | ИЖС |
| Тип строения | Дом |
| Площадь, кв.м. | 132 |
| Площадь участка, сот | 6 |
| Этажность | 2 |
| Материал стен | Кирпич |
| Населенный пункт | Краснодар |
|---|
Продается уютный дом в пос. Индустриальный 132кв.м на 6 сот. ИЖС. Стены дома из газоблока с утеплением 20мм, отделка фасада ангобированным фактурным керамическим кирпичом. Крыша металлочерепица. Качественная предчистовая отделка WHITE BOX, ламинированные окна, теплый водяной пол, стены отшпаклеваны и полностью готовы к финишной отделке, смонтировано отопление, установлены радиаторы, выполнена разводка электрики, выводы под сантехнику.
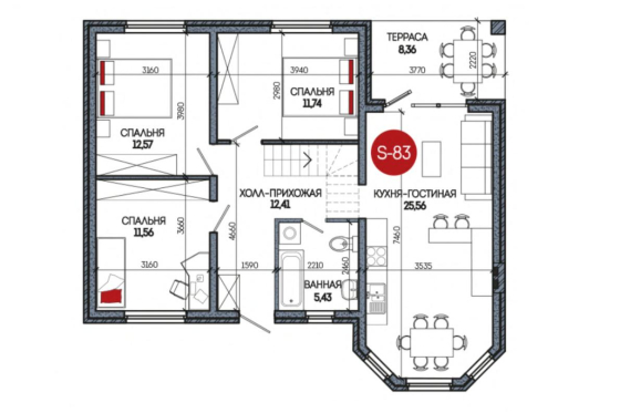
Отличная планировка, первый этаж 83кв.м: большая кухня-гостиная – 25 кв.м, сан.узел, 3 спальни. Второй этаж свободной планировки где можно сделать еще пару комнат, 49кв.м. Монолитные перекрытия и монолитная лесница. Установлен газовый котел, подключены газ, электричество 15 КВт-3 фазы, септик 8 куб., дренажный, скважина - 2 ой водоносный слой, 40 метров, фильтр, насос ставим и интернет
Во дворе крытая терраса, асфальтированная площадка под машину, забор - кирпичные колоны и металлический евро штакетник, с соседями забор из металлопрофиля.
В центре поселка предусмотрено строительство вишневого парка с детской и спортивной площадкой. Поселок будет с асфальтированными дорогами и пешеходными дорожками. Район имеет хорошую инфраструктуру и при этом отличается высокой экологичностью Поблизости построенного поселка находятся все необходимые для человека места, такие как: магазины, места для отдыха, школы, больницы, оборудованы детские площадки и многое другое.
Подходит ипотека с господдержкой и семейная ипотека! Можно использовать мат.капитал в качестве ПВ









