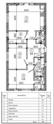
Продается дом, 70 кв.м., /1 эт
| Стоимость | 8 100 000 |
|---|---|
| Комнат в доме | 2 |
| Тип строения | Дом |
| Площадь, кв.м. | 70 |
| Площадь участка, сот | 4 |
| Этажность | 1 |
| Населенный пункт | Краснодар |
|---|---|
| Улица | улица Садовая |
Продается дом, площадью – 70 m2 Участок – 4 сотки. Материал «коробки» дома: -внешние стены - керамический кирпич (Славянский) - внутренние стены - кирпич Poromax 200 -между стенами утеплитель пенополистирол 30 мм. Перегородки межкомнатные - толщиной̆ Poromax 120 мм. Крыша — металлочерепица Супермонтеррей. Окна пластиковые с мультифункциональными стеклами (энергосберегающие). Потолок — парогидроизоляция; Коммуникации: электричество - 15 кВт; септик; водоснабжение; скважина не менее 30 метров. Отопление: сетевой газ по меже; радиаторы алюминиевые. Предчистовая отделка. Земельный участок отсыпается черноземом. Забор – по периметру всего участка - металлопрофиль, высотой 2 м., ворота - Роллеты, калитка из металлопрофиля. Благоустройство –площадка для парковки автомобиля. Рассмотрим ипотеку любого банка, при необходимости поможем в открытии. Подробнее по телефону









