Продается дом, 140 кв.м., /1 эт
| Стоимость | 10 300 000 |
|---|---|
| Тип комнат | раздельные |
| Комнат в доме | 3 |
| Категория земли | ИЖС |
| Тип строения | Дом |
| Площадь, кв.м. | 140 |
| Площадь участка, сот | 4 |
| Этажность | 1 |
| Материал стен | Кирпичный |
| Населенный пункт | Индустриальный Поселок |
|---|---|
| Улица | улица Багратионовская |
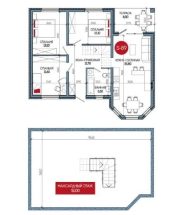
Продается дом с Газом, в благоустроенном Коттеджном Поселке расположенном в Индустриальном. Общая площадь дома 140 кв.м, первый этаж 90 кв.м. с тремя изолированными комнатами 12,11,13 кв.м и просторной кухней-гостинной 26 кв.м. с выходом на терассу. Мансардный этаж 51 кв.м. Участок 6 соток ИЖС. Стены дома из газоблока с утеплением 20мм, отделка фасада ангобированным фактурным керамическим кирпичом. Крыша металлочерепица. Качественная предчистовая отделка WHITE BOX, ламинированные окна, теплый водяной пол, стены отшпаклеваны и полностью готовы к финишной отделке, смонтировано отопление, установлены радиаторы, выполнена разводка электрики, выводы под сантехнику.
Установлен газовый котел, подключены газ, электричество 15 КВт-3 фазы, септик 8 куб., дренажный, скважина - 2 ой водоносный слой, 40 метров, фильтр, насос.
Во дворе асфальтированная площадка под машину, забор - кирпичные колоны и металлический евро штакетник, с соседями забор из металлопрофиля.
Поселок с асфальтированными дорогами и пешеходными дорожками. Район имеет хорошую инфраструктуру и при этом отличается высокой экологичностью Поблизости построенного поселка находятся все необходимые для человека места, такие как: магазины, места для отдыха, школы, больницы, оборудованы детские площадки и многое другое. Можно приобрести дом под СЕМЕЙНУЮ Ипотеку! Выбор плданировок и пдлощади дома! Звоните.























